• Home
  • Green Products
  • Building Design
  • PASS Endorsement
  • The Green Self Builder
  • Home
  • Contact
  • Manufacturer's Zone
    • PASS Endorsement
    • EPDs
      • Introduction to EPDs
      • Environmental impacts measured
      • FAQs
      • Contact us about EPDs
  • About
    • Our mission
    • The team
  • Login
  • home > green building design > case studies > modcell renewable schools > working drawings

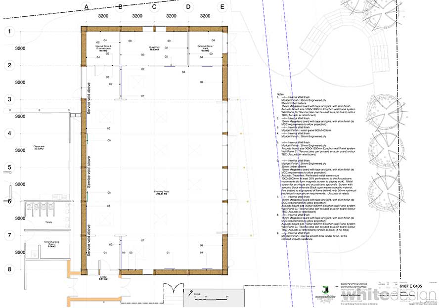
ModCell Schools: Working Drawings

Castle Park Floor Plan

Download castle-park-floor-plan.pdf   Download castle-park-floor-plan.pdf

Castle Park Elevations

Download castle-park-elevations.pdf   Download castle-park-elevations.pdf

Green Building Design
  • Why 'Green'?
  • Building Materials: Impacts Compared
  • Timber: Materials & Design
  • Earth & Clay: Materials & Design
  • Plaster: Render, Mortar & Boards
  • Complex Components: Materials & Design
  • Metals: Production & Environmental Impact
  • Concrete: Production, impact and design
  • Green Roofs & Planting
  • Toxic Chemistry: Chemicals in Construction
  • Building Physics
  • Passivhaus
  • Renewable Energy & Green Technology
  • Housing Refurbishment / Retrofit
  • Old Buildings
  • Building Dismantling: Re-use & Recycling
  • Embodied Carbon & EPDs
  • Glossary of Green building
  • Post Occupancy Evaluation (POE)
  • Water
  • Lighting
  • Passive Solar design
  • Spotting 'Greenwash'
  • Recycled content
  • Wellbeing in the environment
  • Materials: whole life costing
  • Reclaimed construction materials
  • Case Studies
  • The Pavilion: E2 Architecture
  • The Larch House: bere:architects
  • Denby Dale Passivhaus
  • Wilkinson Primary School: Architype
  • Kirklees Media School: Stephen George
  • ModCell renewable schools
  • Construction & Performance
  • Working Drawings
  • Images
  • Hemcrete at M&S Cheshire Oaks
  • Steel Farm: Mark Siddall
  • Vaudeville Court: Levitt Bernstein
  • Introduction & Causes
  • Greenspec® is a registered trademark No. 253941
    Greenspec is Data Protection Act (DPA) registered.

    © 2026 GreenSpec

    • Home
    • Green Products
    • Building Design
    • Manufacturer's Zone
    • About
    • Contact

  • Responsive web design for
Website Design by srcreative.net